Products


Contact

Support
bizden haberler logolar

News

ENTI New Website.

Enti Mühendislik LTD. ŞTİ. new web site on air.

100 mt Giant Flagpole

100 mt Giant Flagpole manufactured by ENTI and erected in Azerbaijan.

Read More

Türkmen Construction 2012 Fair

Türkmen Construction 2012 Fair

Read More

Enti online market

Enti online market webpage is on air now.

Galvanised Lighting poles


AD Galvanizli Galvanizli Aydinlatma Diregi

Galvanised Polygon Street/ road Lighting poles

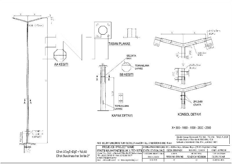
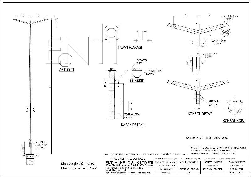
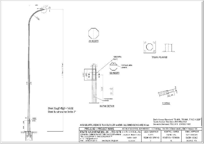
The Lighting poles which we produce for in particular road lighting are produced as standard as hot dip galvanised. Our production is incompliance with new TEDAS specifications and TSE standards. The standard production is octagonal (Polygon) profiled. Typical lighting pole includes four pieces of Anchorage for basement mounting as standard.

Technical Specifications

Pole Height : 3 – 15 m.
Pole Type : Steel pole formed by slip-joint connection of polygonal modules.
Material : St 37 - S235JR - EN 10025 / St 52 - S355JR High Strength Steel
Ground connection : Anchor Bolt and Base flange for foundation connection (optional with hinge- up to 8m).
Surface Protection : Hot Dip Galvanised at EN ISO 1416 (galvanised Under ISO Standards)
Surface Coating : Electro-static powder coating / Primary + Epoxy
Bolt / Anchorage : ISO 898. 1 /5.8


Other Specifications:

All types and styles of arm brackets.
Enlightenment by 1 direction, 2 directions, 3 directions, 4 directions, 6 directions, 8 directions
Statical calculations: EN 40-3-3, ANSI/TIA 222-G, ASCE - 72
Projects according to wind speed 130 km/hr or in compliance with wind speed of 160 km/hr

Note
: The statical project and foundation dimensions are provided by our project team after your order.
Foundation manufacturing and erection services are provided.

AD Galvanizli Aydinlatma Direk AD1AD Galvanizli Aydinlatma Direk AD1 B1000AD Galvanizli Aydinlatma Direk AD1 B2000AD Galvanizli Aydinlatma Direk AD2
AD Galvanizli Aydinlatma Direk AD2 B1000AD Galvanizli Aydinlatma Direk AD2 B2000AD Galvanizli Aydinlatma Direk AD3AD Galvanizli Aydinlatma Direk AD4
Places where they are used
Enti Mühendislik

Urban road and lanes

Enti Mühendislik

Urban or intercity high ways

Enti MühendislikOpen car-parks
Enti MühendislikAirports
Enti MühendislikPorts
Enti Mühendislik

Expressways, motorways

Enti Mühendislik

Parks and gardens

Enti MühendislikParks
Enti Mühendislik

Squares

Enti Mühendislik

Industrial Plants and sites

Enti Mühendislik

Sports’ fields

Enti Mühendislik

Small scaled sports’ fields

Enti Mühendislik

Car-park

Enti Mühendislik

Illumination for wide zones

Enti Mühendislik

Military zone

Enti Mühendislik

Cross-roads and squares

Enti Mühendislik

Meteorology Measurement

Enti MühendislikMemorial
Enti Mühendislik

Patios- and private properties

Enti Mühendislik

In-site illuminations

Enti Mühendislik

Building roof

STANDARD LIGHTING POLE DIMENSIONS

Height - mt

Base Dia- mm

Top Dia - mm

Shaft Length – Upper Part - mt

Shaft Length – Base Part - mt

Thickness – Upper Part- mm

Thickness – Base Part - mm

Flange Width x Length - mm

Flange Thickness - mm

Hole Center - mm

Anchor Bolt

5125605,00 3 22012160M12
6140606,00 3 26012180M16
7170607,00 3 28014200M16
8180608,00 3 30014210M16
9205609,00 3 36016250M20
102206010,00 3 40016270M20
112356011,00 3 42016290M20
122506012,00 3 42016290M20
13225607,006,353444018290M24
14240608,006,353444018290M24
15250609,006,353444018290M24
Arm Bracket

Tube with 15 degree inclination at the top of the pole for the connection of armature of which the length depends on the height of pole.

Anchorage

The structure of construction enabling pole and basement connection.