أعمدة الإنارة المغلفنة


AD Galvanizli Galvanizli Aydinlatma Diregi

أعمدة إنارة الطرق والشوارع المغلفنة المضلعة

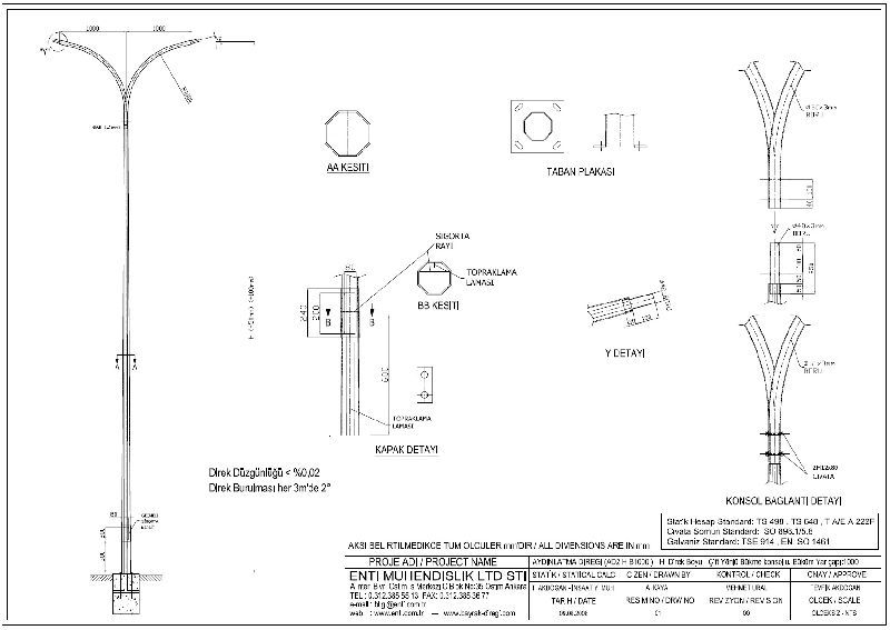
إن أعمدة الإنارة التي ننتجها لإنارة الطرق بشكل خاص، تصنع بطريقة الغلفنة بالتغطيس على الساخن طبقاً للمعايير والمقاييس الدولية ذات العلاقة. منتجاتنا تتوافق مع مواصفات مؤسسة توزيع الطاقة الكهربائية التركية ومع مقاييس ومعايير معهد المقاييس التركي (TSE). الإنتاج النموذجي هو أعمدة ذات مقطع ثُمانِيّ. تقدم الشركة أيضاً أربع قطع تثبيت لأجل تركيب القاعدة مع كل عمود إنارة.

المواصفات الفنية
3 – 13 م ارتفاع العمود
عمود من الفولاذ الصلب مؤلف من وصل وحدات مضلعة منزلقة فوق بعضها البعض وع العمود
St37 – S235JR – EN10025 فولاذ ذو متانة عالية نوع المواد
برغي لولبي للتثبيت وقاعدة لوصل العمود بالأساس، (اختياري: مع مفصلة – للأعمدة التي لايتجاوز طولها 8 أمتار). صل بالأرض
مغلفن بالتغطيس على الساخن طبقاً للمعايير أي أن إيسو1416EN ISO1416) ). حماية السطح
تغليف الكتروستاتيكي بالبودرة/طبقة أساس + راتنج إيبوكسي. تغليف السطح
إيسو 898. 1/5.8 البرغي/التثبيت
مواصفات أخرى

جميع أنواع وأشكال الأذرع
الإنارة باتجاه واحد، باتجاهين، بثلاثة اتجاهات، بأربع اتجاهات.
EN 40-3-3, ANSI/TIA 222-G, ASCE-72 الحسابات الإستاتيكية:
مشاريع خاصة تبعاً لسرعة رياح مقدارها 130 كلم/ساعة، أو بالتوافق مع سرعة رياح 160 كلم/ساعة.
لوحة عليا لتركيب لوحة الطاقة الشمسية والبطارية
ملاحظة: الوضع الاستاتيكي للمشروع وأبعاد الأساسات تقدم لكم من قبل فريقنا الفني لدى استلامنا طلب الشراء.
نقدم لكم أيضاً خدمات تصنيع الأساسات وخدمات التركيب

AD Galvanizli Aydinlatma Direk AD1AD Galvanizli Aydinlatma Direk AD1 B1000AD Galvanizli Aydinlatma Direk AD1 B2000AD Galvanizli Aydinlatma Direk AD2
AD Galvanizli Aydinlatma Direk AD2 B1000AD Galvanizli Aydinlatma Direk AD2 B2000AD Galvanizli Aydinlatma Direk AD3AD Galvanizli Aydinlatma Direk AD4

الأماكن التي يجري استعمال الأعمدة بها
Enti Mühendislikالطرق والممرات في المدن
Enti Mühendislikالطرق السريعة داخل المدن وحولها
Enti Mühendislikمرائب السيارات المفتوحة
Enti Mühendislikالمطارات
Enti Mühendislikالموانيء البحرية
Enti Mühendislikالطرق السريعة، الطرق العادية
Enti Mühendislikالمنتزهات والحدائق
Enti Mühendislikأماكن ممارسة رياضات الركض والهرولة
Enti Mühendislikالمنتزهات
Enti Mühendislikالساحات
Enti Mühendislikأبنية ومناطق المنشآت الصناعية
Enti Mühendislikالميادين الرياضية الأولمبية
Enti Mühendislikالميادين الرياضية الصغيرة
Enti Mühendislikمرائب السيارات
Enti Mühendislikإنارة المناطق الواسعة
Enti Mühendislikالمناطق العسكرية
Enti Mühendislikتقاطع الطرق والساحات
Enti Mühendislikالباحات والأملاك الخاصة
Enti Mühendislikإنارة مواقع العمل

TEDAŞ AYDINLATMA DİREKLERİ GENEL ÖLÇÜLERİ

Boy - mtAlt Çap - mmÜst Çap - mmGövde Boyu - Üst Modül - mtGövde Boyu - Alt Modül - mtSaç Kalınlığı - Üst Modül - mmSaç Kalınlığı - Alt Modül - mmTaban Plaka En x Boy - mmTaban Plaka Et Kalınlığı - mmDelik Arası - mmAnkraj Tipi
5125605,00 3 22012160M12
6140606,00 3 26012180M16
7170607,00 3 28014200M16
8180608,00 3 30014210M16
9205609,00 3 36016250M20
102206010,00 3 40016270M20
112356011,00 3 42016290M20
122506012,00 3 42016290M20
13225607,006,353444018290M24
14240608,006,353444018290M24
15250609,006,353444018290M24
الجزء المعلق
أنبوب مائل بـ 15 درجة في أعلى العمود لتوصيل وحدة الإنارة التي يعتمدطولها على ارتفاع العمود
وحدة الربط
الهيكل الإنشائي الذي يسمح بربط العمود مع الأساس